您好,欢迎来到企业库b2b平台网站
[请登陆]
[免费注册]
小程序
APP
微信公众号
手机版
[ 免责声明 ]
[ 举报 ]
搜产品
搜企业
客服电话:
13631151688
首页
资讯
黄页
会员
产品
b2b黄页
企业级商城
信息发布
114
搜索:
官网建设
仓储货架
企业库首页
>
资讯
行业
照明工业
电子元器件
传媒、广电
防护
包装
纸业
办公、文教
数码、电脑
电工电气
纺织、皮革
服装
服饰
机械行业
五金、工具
石油、化工
精细化学品
橡塑
环保
仪器仪表
家居用品
家用电器
建筑、建材
交通运输
礼品、饰品
能源
农业
汽摩及配件
食品、饮料
通信产品
玩具
冶金矿产
护理、保养
印刷
运动、休闲
商务服务
加工
其他
广告
污水处理紫外线消毒设计选型
作者:
中山禹晟科技有限公司
来源:
5967564
发布时间:2025-09-30
浏览:2
01 选型计算
(1)紫外消毒型式
考虑到耐污和清洗,污水厂常用
明渠形式淹没式紫外灯组进行紫外消毒
,而管式紫外消毒应用较少。
紫外线消毒系统主要包括
灯管模块、紫外线强度检测系统和自动清洗系统
。
(2)紫外灯分类
紫外灯分类紫外灯分为低压灯(工作压力0.13-1.33Pa,输入、输出功率分别为0.3W/cm
2
、2W/cm
2
);
低压高强灯(工作压力0.13-1.33Pa,输入、输出功率分别为1.5W/cm
2
、0.6W/cm
2
);
中压灯(工作压力0.013-I.33MPa,消毒的有效波长为251nm,输入、输出功率分别为50- 150 W/cm
2
、7.5-23 W/cm
2
)。
(3)有效剂量
为保证达到《城镇污水处理厂污染物排放标准》(GB18918-2002)中一级B和二级标准,紫外线有效剂量不应低于
15mJ/cm
2
;
为保证达到一级A标准,紫外线有效伎俩为15-22mJ/cm
2
。
工程设计中建议不低于20mJ/cm
2
;
为再生水消毒时,紫外线有效剂量为
24-30 mJ/cm
2
;
紫外消毒作为生活饮用水主要消毒手段时,紫外线有效剂量不应低于
10mJ/cm
2
。
(4)
灯管数计算
计算灯管数所采用的来水水量要结合总图,考虑峰值。
对于不设缓冲池的SBR、CASS等间歇排水工艺,则按照滗水器滗水量设计。
紫外灯灯管水力负荷低压灯100-200m
3
/(d·灯数),低压高强灯250-500m
3
/(d·灯数),中压灯1000-2000m
3
/(d·灯数)。
紫外穿透率≥60%,工业水多的时候透过率取低些,50-55%,水力负荷也取低此。
(5)消毒渠尺寸计算
根据灯管的数量和排架数确定灯管组的尺寸,继而确定总的消毒渠的宽度,如1.2m、1.6m或2.0m等。
对于分期建设的项目,消毒渠土建可以按照远期规模建设。设备按照近期规模安装、这样近期的灯管模块宽度小于渠宽,则应做砼挡墙。
02 设计要点
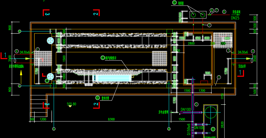
以两组紫外消毒渠为例,明渠形式紫外消毒渠平而布置如下图所示。
(1)进水区
来水管先引入进水配水渠道。配水到几组平行布置的消毒渠。
(2)紫外消毒渠
紫外线照射渠不宜少于2组。对于紫外和下游补加氯的联合消毒系统,当采用1组紫外消毒渠时,宜设置超越渠。
超越渠和消毒渠并列布置,超越渠接入加氯消毒设施进入下游接触池。
每组消毒渠前设闸门( 根据具体情况选择附壁式或渠道式)。
(3)平面布置
从整流板到灯管模块起端的距离宜不小于1.5m距离。
消毒渠下游设置矩形出水堰出水。
灯管模块术端到出水堰的距离应大于1m,以稳流为目的,可在1.5-2.8m范围取值。
建议镇流器柜放在消毒渠的前端渠正上方,每个渠一个单独的镇流器柜、电控柜和空压机柜等设置于渠道之间。
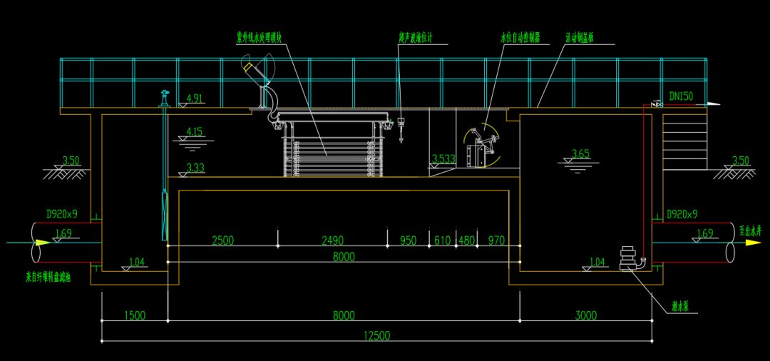
(4)液位
对于浸没式水平方向布置的紫外灯组。
紫外消毒渠灯管组前后水位差≤0.5m,灯管净间距一般取0.1m
,原因是灯管的照射范国为100mm。
最上而一排灯管距离高峰水位(堰上水头)低于40mm,最下面一排灯管与池底距离低于50mm。
(5)出水区
渠道式紫外消毒、出水ss为水位控制器,无需动力,
但不适用于频繁断流情况(如SBR出水)
。
固定堰出水需要保证足够的堰长,控制堰上水头不超过10mm。
堰顶高度(堰出水标高)应适当高于最上面一排灯管的中心线标高,以保证发热的灯管时刻泡在水里。
出水堰于消毒渠下游沿宽度方向平行布置,出水堰堰宽400mm,堰间距400-500mm。
如果用混凝土做出水槽壁厚150mm,矩形堰的设计是根据堰负荷计算堰的个数和单个堰的尺寸,灯管少的时候要考虑水头损失和是否会涌水问题、高峰水量和低谷水量都要考虑到。
上一条:
科普 | 多孔碳化硅(SiC)陶瓷膜分离技术
郑重声明
:资讯 【污水处理紫外线消毒设计选型】由 中山禹晟科技有限公司 发布,版权归原作者及其所在单位,其原创性以及文中陈述文字和内容未经(企业库www.qiyeku.cn)证实,请读者仅作参考,并请自行核实相关内容。若本文有侵犯到您的版权, 请你提供相关证明及申请并与我们联系(qiyeku # qq.com)或
【在线投诉】
,我们审核后将会尽快处理。
会员咨询QQ群:902340051 入群验证:企业库会员咨询.
热门资讯
01 .
污水处理紫外线消毒设计选型
02 .
科普 | 多孔碳化硅(SiC)陶瓷膜分离技术
03 .
和次氯酸钠对比后我才知道,污水厂利用紫外线消毒也很OK!
04 .
UV/臭氧-双氧水联用催化氧化技术
05 .
光量子 除臭技术
06 .
【商会动态】中山市河南商会秘书长王丽受市工商联邀请担任意识形态工作暨宣传工作培训班分享嘉宾
07 .
【商会动态】中山市河南商会召开第四届第四次常务理事会扩大会议
08 .
【片区活动】中山市河南商会中心城区举办中秋联谊活动
09 .
2025年横栏镇裕祥村居民区环卫保洁采购项目招标公告
10 .
甲基异丁基甲醇MIBC 塞拉尼斯/阿科玛 165kg/桶
11 .
济南现货 神马环己醇 185kg/桶 国标工业级
12 .
供应国产巯基乙醇 济南仓库现货 220kg/桶
13 .
滨化/达康原装 三氯乙烯 济南仓库现货 可分装小桶
14 .
乙二醇丁醚 天音原装 现货库存直发 一手代理
15 .
对羟基苯甲醚 索尔维原装现货库存 25kg/箱
16 .
济南供应 利华益苯酚 200kg/桶 国标工业级
17 .
供应鲁西苯甲醇 210kg/桶 现货库存 100-51-6
18 .
供应鲁西正丁醇 现货库存 170kg/桶 支持分装
19 .
硫酸羟胺 25kg/袋 现货库存直发
20 .
供应英威达己二胺 现货库存直发 160kg/桶
立即登陆
免费注册
免费注册只需30秒,立刻尊享
免费开通旗舰型网络商铺
免费发布无限量供求信息
每天查看30万求购信息
首页
b2b会员地图
b2b产品地图
b2b资讯地图
b2b黄页地图
b2b标签地图
企业落地页
行业词库
Qiyeku版权所有 © 2006-2025
粤ICP备11060901号
资讯
黄页
贴吧
免责声明
举报
关于企业库
企业库会员功能
平台资质